Gîte Le Dahlia
Détails
Séjour au pied d'un village alpin de la vallée de la Vésubie, Mercantour entouré de châtaigniers et mélèzes. Ensemble de 8 gîtes communaux mitoyens situés au quartier du Puey. Idéal pour se retrouver à plusieurs familles ou entre amis tout en conservant son intimité en réservant plusieurs gîtes. Le Gîte Dahlia est mitoyen au Gîte Cyclamen (4104) et Eglantine (4106).Parc de loisirs à proximité, commerces et piscine (en été) au village. La route du Col de Turini (sur 12km) et ses nombreux lacets, sont célèbres dans le monde de l'automobile. En effet, chaque année en janvier le Rallye de Monte Carlo y organise l'une de ses spéciales. A 15km, de nombreuses activités vous attendent été comme hiver à la station de Camp d'Argent, et notamment autour du massif de l'Authion. 12km également pour rejoindre la station thermale de Berthemont les Bains.
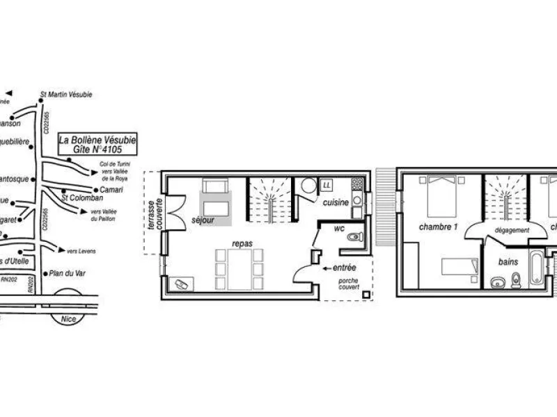
Gîte Dahlia en duplex. Rez-de-chaussée : - Entrée, porche couvert. - Séjour coin-cuisine (23 m2- convertible 140*190), TV avec antenne intérieure. - WC indépendant. 1er étage : - 1 chambre (13 m2- 1 lit 2 pers. 140*190 & 1 lit 1 pers. 90*190). - 1 chambre (9 m2- 1 lit 2 pers. 140*190). - Salle de bains avec wc. - Terrasse couverte. - Jardinet privatif clos (8 m2). - Chauffage électrique. Charges incluses. Taxe de séjour en supplément. Parking.
Cet établissement vous intéresse ? Rendez-vous sur leur site pour réserver ou en savoir plus.
Localisation
Cet établissement vous intéresse ? Rendez-vous sur leur site pour réserver ou en savoir plus.
Autres Accueil Vélo à proximité
Une information à nous communiquer sur cet établissement ?
Signaler un problème
